首页
永乐汇概况
局领导简介
馆领导简介
档案局简介
档案馆简介
档案馆内设机构
政务公开
档案局权责清单
档案局政务公开
档案馆财务工作
档案馆绩效工作
职称评审
学会工作
政策法规
法律法规
部门规章
标准规范
规范性文件
兰台快讯
要闻速递
通知公告
局馆动态
市县动态
机关党建
党建动态
清廉机关建设
群团工作
学习园地
档案文化
网上展厅
编研成果
专题档案
档案视频
八桂史话
多媒体展厅
服务大厅
馆藏纵横
档案利用查阅中心
政府信息公开查阅中心
开放档案
政务服务
会员登录
位置:
首页
>
法规标准
>
国家标准
科学技术档案案卷构成的一般要求
发布时间:2015-07-08 16:57:33
来源(作者):
科学技术档案案卷构成的一般要求
1 范围
本标准规定了科学技术档案案卷的组卷原则和方法、案卷和案卷内文件材料的排列、案卷的编目、案卷的装订、卷盒、表格规格及其制成材料的质量要求。
本标准适用于一般科学技术档案的案卷整理。专业性较强和非纸质载体科学技术档案的整理可参照本标准。
2 规范性引用文件
下列文件中的条款通过本标准的引用而成为本标准的条款。凡是注日期的引用文件,其随后所有的修改单(不包括勘误的内容)或修订版均不适用于本标准,然而,鼓励根据本标准达成协议的各方研究是否可使用这些文件的最新版本。凡是不注日期的引用文件,其最新版本适用于本标准。
GB/T 10609.3 技术制图 复制图的折叠方法
3 术语与定义
下列术语与定义适用于本标准。
3.1
科学技术文件材料(以下简称科技文件) scientific and technological records
记录和反映科学研究、生产运营、项目建设活动和设备仪器运行、维护及其管理工作的文字、图表、声像等不同形式文件材料的总称。
3.2
科学技术档案(以下简称科技档案) scientific and technological archives
国家机构、社会组织以及个人从事各项社会活动形成的,对国家、社会、本单位和个人具有保存价值的,应当归档保存的科技文件。
3.3
案卷 files
由互有联系的若干文件组合而成的档案保管单位。
3.4
卷内文件目录(以下简称卷内目录)inner-file item list
登录卷内文件题名和其他特征并固定文件排列次序的表格,排列在卷内文件之前。
3.5
卷内备考表 file note
卷内文件状况的记录单。
3.6
档号 archival code
以字符形式赋予档案实体的用以固定和反映档案排列顺序的一组代码。
3.7
案卷目录 file list
登录案卷题名、档号、保管期限及其他特征,并按案卷号次序排列的档案目录。
4 案卷组织
4.1 组卷原则
遵循科技文件的形成规律,保持案卷内科技文件的有机联系和案卷的成套、系统,便于档案的保管和利用。
4.2 组卷要求
4.2.1 案卷内科技文件应齐全、完整,签章手续完备。
4.2.2 案卷内科技文件的载体和书写印制材料应符合档案保护要求。
4.3 组卷方法
4.3.1 针对具体项目的管理性科技文件应放入所针对的项目文件中,按阶段或分年度组卷。
4.3.2 科研课题、产品、建设项目、设备仪器方面的科技文件,应按其项目、结构、阶段或台(套)等分别组卷。
4.3.3 成册、成套的科技文件宜保持其原有形态。
4.3.4 通用图、标准图可放入相应一项目文件中或单独组卷。其他涉及这些通用图、标准图的项目,应在卷内备考表中注明并标注通用图、标准图的图号和档号。
4.3.5 底图以张或套为保管单位进行整理。
4.3.6 产品局部或零部件变更、建设项目和设备仪器在维修和维护中所形成的科技文件,宜采取插卷方式放入原案卷中;亦可单独组卷排列在原案卷之后,并在原案卷的备考表中予以说明和标注。
4.3.7 产品升级换代、建设项目后评估、改扩建或重建所形成的科技文件应单独组卷排列。
5 案卷和案卷内科技文件排列
5.1 科技文件宜按系统、成套性特点进行案卷或卷内文件排列。卷内文件一般应文字材料在前,图样在后;译文在前,原文在后。
5.2
案卷内管理性文件按问题结合时间(阶段)或重要程度排列。一般应印件在前,定稿在后;正件在前,附件在后;复文在前、来文在后。
5.3 科研类案卷宜按课题可行性研究立项、方案论证、研究实验、总结鉴定、成果和知识产权申报、推广应用等阶段排列。
5.4 产品类案卷宜按产品设计(含初步设计、基础设计、技术设计)、工艺、工装、制造、定型等工作程序,或按其产品系列、结构等排列。
5.5 建设项目类案卷宜按项目前期、项目设计、项目施工、项目监理、项目竣工、项目验收及项目后评估等阶段排列。
5.6 设备仪器类案卷应按设备仪器立项审批、外购设备仪器开箱验收(自制设备仪器的设计、制造、验收)、设备仪器安装调试、随机文件材料、设备仪器运行、设备仪器维护等阶段或工作程序排列。
6 案卷编目
6.1 卷内科技文件页号编写
6.1.1 案卷内科技文件以件为单位编写页号,以有效内容的页面为一页。
6.1.2 已有页号的文件可不再重新编写页号。
6.1.3 卷内目录、卷内备考表不编写页号。
6.2 案卷封面编制
6.2.1 案卷封面宜印制在卷盒正表面,亦可采用内封面形式(封面式样见图A1。虚线内为提示项,下同)
6.2.2 案卷题名,应简明、准确地揭示卷内科技文件的内容,主要包括产品、科研课题、建设项目、设备仪器名称或代字(号)、结构、阶段名称、文件类型名称等。
6.2.3 立卷单位,应填写负责组卷部门或单位。
6.2.4 起止日期,应填写案卷内科技文件形成的最早和最晚的时间---年、月、日(年度应填写四位数字,下同)。
6.2.5 保管期限,应填写组卷时依照有关规定划定的保管期限。
6.2.6 密级,应填写卷内科技文件的最高密级。
6.2.7 档号,由全宗号、分类号(或项目代号或目录号)、案卷号组成。
全宗号,需向档案馆移交的档案,其全宗号由负责接收的档案馆给定;
分类号,应根据本单位分类方案设定的类别号确定;
项目代号,由所反映的产品、课题、项目、设备仪器等的型号、代字或代号确定;
目录号,填写目录编号;
案卷号,应填写科技档案按一定顺序排列后的流水号。
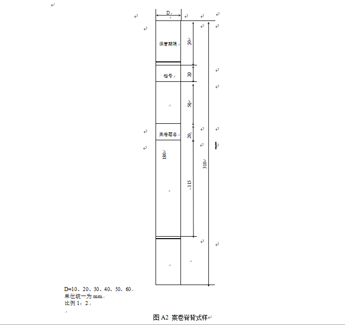
6.3 案卷脊背编制
6.3.1 案卷脊背印制在卷盒侧面,脊背式样见图A2。
6.3.2 案卷题名、保管期限、档号,填写方法同6.2。
6.3.3 案卷脊背项目可根据需要选择填写。
6.4 卷内目录编制
6.4.1 卷内目录应排列在卷内文件首页之前,式样见图A3。
6.4.2 序号,应依次标注卷内文件排列顺序。
6.4.3 文件编号,应填写文件文号或型号或图号或代字、代号等。
6.4.4 责任者,应填写文件形成者或第一责任者。
6.4.5 文件题名,应填写文件全称。文件没有题名的,应由立卷人根据文件内容拟写题名。
6.4.6 日期,应填写文件形成的时间---年、月、日。
6.4.7 页数,应填写每件文件总页数。
6.4.8 备注,可根据实际填写需注明的情况。
6.4.8 档号,填写方法同6.2.7
6.5 卷内备考表编制
6.5.1 卷内备考表式样见图A4。
6.5.2 卷内备考表应标明案卷内全部文件总件数、总页数以及在组卷和案卷提供使用过程中需要说明的问题。
6.5.3 立卷人,应由立卷责任者签名。
6.5.4 立卷日期,应填写完成立卷的时间。
6.5.5 检查人,应由案卷质量审核者签名。
6.5.6 检查日期,应填写案卷质量审核的时间。
6.5.7 互见号,应填写反映同一内容不同载体档案的档号,并注明其载体类型。
6.5.8 档号,填写方法同6.2.7。
6.5.9 卷内备考表,应排列在卷内全部文件之后,或直接印制在卷盒内底面。
6.6 案卷目录编制
6.6.1 案卷目录式样见图A5。
6.6.2 序号,应填写登录案卷的流水顺序号
6.6.3 档号、案卷题名、保管期限,填写方法同6.2。
6.6.4 总页数,应填写案卷内全部文件的页数之和。
6.6.5 备注,可根据管理需要填写案卷的密级、互见号或存放位置等信息。
7 案卷装订
7.1 案卷内文件可整卷装订或以件为单位装订。
7.2 以件为单位装订的应在每件文件首页空白处加盖档号章,式样见图A7。档号填写方法同6.2.7,序号填写方法同6.4.2。
7.3 案卷内超出卷盒幅面的科技文件应叠装。图纸折叠方法见GB/T 10609.3。破损的科技文件要应修复。
8 卷盒、表格规格及其制成材料
8.1 卷盒式样见图A6。
8.2 卷盒规格和制成材料
8.2.1 卷盒外表面规格为:310mm×220mm。脊背厚度可根据需要设定。
8.2.2 卷盒宜采用220g以上的单层无酸牛皮纸板双裱压制。
8.3 表格规格和制成材料
8.3.1 案卷目录、卷内目录、卷内备考表表格规格为:297mm×210mm。
8.3.2 表格宜采用70g以上白色书写纸制作。
8.4 表格字迹应清晰端正。